Thời tiết đang thật khó chiều, sau những ngày mưa tầm tã, mưa khiến cho nhiều nơi ngập lụt thì trời lại chuyển qua nắng nóng ghê gớm, nắng nóng khiến mọi người mệt mỏi, thế nhưng các kỹ sư của Angcovat vẫn hàng ngày chống trọi với cái nóng để tập trung sáng tạo ra những ban ve mau biet thu dep phù hợp nhất, đẹp nhất dành cho những vị khách hàng yêu quý. Giữa cái nóng oi ả của đầu hè, chúng tôi rất vui khi nhận được cuộc gọi của chị Dung ở Hải Dương. Chị cho biết, hiện tại chị đang sở hữu một ô đất có diện tích hơn 100m2 và có ý định xây một căn nhà diện tích 90m2, mặt tiền 5m. Sau khi nghe những yêu cầu của chị Dung, các kiến trúc sư đã có sự hình dung về ngôi nhà của chị. Chúng tôi bắt tay ngay vào thiết kế bản vẽ nhà 90m2 với mong muốn hiện thực hóa ngôi nhà của chị Dung một cách sớm nhất.
Niềm vui của chúng tôi nhân lên gấp đôi khi nhận được hồ sơ thiết kế cuối cùng, chị Dung khá hài lòng. Đây là động lực tinh thần vô cùng to lớn để chúng tôi tiếp tục thực hiện sứ mệnh mang đến mẫu biệt thự sân vườn 2 tầng hoàn hảo cho cuộc sống của bạn.
Cùng chúng tôi xem lại những thông số tổng quát của bản vẽ thiết kế nhà 90m2 4 phòng ngủ mặt tiền 5m BT526046
|
1: Mẫu biệt thự |
BT526046 |
|
2: Số tầng |
02 |
|
3: Chủ đầu tư |
Bà Dung |
|
4: Địa điểm |
Hải Dương |
|
5: Mặt tiền |
5m |
|
6: Chiều sâu |
18m |
|
7: Kích thước ô đất |
5x23m=115m2 |
|
8: Kiến trúc sư thiết kế |
Vương Văn Quân |
|
9: Năm thi công dự kiến |
Tháng 7 năm 2016 |
|
10: Kinh phí dự kiến |
800 triệu |
|
11: Thông số công năng diện tích |
- Tầng 1: 1 phòng khách, 1 phòng ngủ, 1 phòng bếp ăn, 1 vệ sinh chung. Diện tích tầng 1: 90m2
- Tầng 2: 3 phòng ngủ, 1 hành lang, 1 sảnh tầng. Diện tích 90m2.
|
Phối cảnh ngoại thất của bản vẽ thiết kế nhà 90m2 mà các kiến trúc sư thiết kế cho chị Dung ở Hải Dương.

Phối cảnh view 1: Phối cảnh ngoại thất của bản vẽ thiết kế nhà 90m2 ở Hải Dương.
Bản vẽ thiết kế nhà 2 tầng 90m2 mặt tiền 5m với phong cách tân cổ điển hớp hồn những người vô tình lướt qua.
Nhìn từ ngoài vào, có thể thấy bản vẽ thiết kế nhà 90m2 có mặt tiền không lớn, chỉ 5m2 thế nhưng dưới bàn tay thiết kế của các kiến trúc sư Angcovat, mẫu nhà 2 tầng 90m2 vẫn cuốn hút người qua đường. Nhà đẹp diện tích 90m2 được thiết kế theo phong cách tân cổ điển. Khác với phong cách hiện đại với những đường nét trang trí dứt khoát hay phong cách cổ điển với những chi tiết uốn lượn, mềm mại thì phong cách tân cổ điển là sự kết hợp của 2 phong cách trên. Đơn giản, tinh tế là những gì phong cách tân cổ điển mang lại. Đó là vẻ đẹp toát ra từ sự hài hòa đến kinh ngạc của mỗi đường nét trên trần, tường và các món đồ nội thất.
Phong cách tân cổ điển hiện nay là phong cách được nhiều người lựa chọn, nó mang tới cái nhìn gợi cảm, tuy đơn giản nhưng đem lại sự tinh tế, thanh lịch cho mẫu biệt thự 2 tầng 2 mặt tiền. Cụ thể vào mẫu nhà 2 tầng 90m2, phong cách tân cổ điển thể hiện rõ nhất ở chi tiết cửa ban công tầng 2 với dáng mái vòm tinh tế, cuốn hút hay những trụ cột tròn với những đường nét trang trí trên thân cột. Hoặc như hệ thống cửa cổng, lan can đều được thiết kế với những chi tiết uốn lượn, hoa văn mà ở phong cách hiện không có được.
Mẫu thiết kế nhà đẹp 2 tầng 90m2 800 triệu vớ chiếc mũ đen sẫm che mưa che nắng cho toàn bộ không gian nội thất

Phối cảnh view 2: Bản vẽ thiết kế nhà 90m2 lựa chọn hệ mái thái đăng đối.
Những ngôi nhà mái thái rất được ưa chuộng trong xây dựng nhà ở bởi vẻ đẹp trang nhà về kiểu sáng và mang lại hiệu quả cao trong việc điều hòa không khí. Đây là kiểu nhà khá phù hợp với khí hậu nhiệt đới nước ta. Độ dóc của mái thái giúp nước mưa chảy nhanh, chống thấm và dột cho căn nhà. Mái càng dốc thì thoát nước càng nhanh nhưng lại tốn vật liệu xây nhà. Chính vì vậy, để tiết kiệm tối đa kinh phí cho chủ đầu tư, các kiến trúc sư đã thiết kế độ dốc mái thái vừa phải, vừa có thể thoát nước tốt, không bị đọng nước, vừa tiết kiệm một khoản chi phí nhất định cho bạn.
Với những ưu điểm mà mái thái mang lại thì mật độ những ngôi nhà mái thái mọc lên là điều dễ hiểu. Bạn có thể tham khảo thêm những mẫu xây nhà 2 tầng diện tích 100m2 mái thái khác
Mời bạn theo chân chúng tôi vào thăm nội thất bản vẽ thiết kế nhà 90m2

Mặt bằng nội thất tầng 1 bản vẽ thiết kế nhà 90m2
Bản vẽ thiết kế nhà 90m2 có mặt tiền 5m, vì mặt tiền không lớn, vì thế các kiến trúc sư quyết định thiết kế kiểu nhà ống cho chị Dung. Tầng 1 của bản vẽ thiết kế nhà 90m2 gồm 1 phòng khách, 1 phòng ngủ, 1 phòng bếp ăn và 1 nhà vệ sinh chung.
Bước qua cánh cổng là vào khu vực sân trước diện tích 10m2, khu vực sân trước được lát gạch sáng màu có bố trí cây cảnh để không gian nhà thêm phần thông thoáng, nhiều oxi. Bậc tam cấp được ốp đá đen bóng mang lại vẻ đẹp sang trọng, tương phản với sắc đen của bậc cửa là hệ thống cửa chính rộng lớn với màu trắng. Bên trong là khu vực phòng khách rộng 21m2. Mời các bạn ngồi xuống và cảm nhận sự âm ái của chiếc ghế sofa, cùng uống tách trà với chúng tôi và xem những chương trình truyền hình.
Đi qua khu vực sảnh tầng diện tích 4,1 m2 là không gian phòng ngủ diện tích 12m2. Chiếc giường êm ái kia sẽ đưa bạn vào giấc ngủ ngon sau một ngày làm việc căng thẳng mệt mỏi. Men theo hàng lang đi sâu vào trong là khu vực bếp ăn rộng 20m2. Tại đây chúng tôi đặt một chiếc bàn dài với 6 chiếc ghế, phù hợp với số thành viên trong gia đình chị Dung. Đây là không gian cả gia đình quây quần thưởng thức những món ăn ngon. Phòng bếp ăn có một lỗi phụ dẫn ra ngoài, để khi gia đình có khách bạn có thể dễ dàng di chuyển mà không ảnh hưởng đến việc tiếp khách bên ngoài. Xây nhà 2 tầng diện tích 140m2 có cách thiết kế tương tự
Mặt bằng tầng 2 của bản vẽ thiết kế nhà 90m2 được thiết kế đơn giản

Mặt bằng tầng 2 của bản vẽ thiết kế nhà 90m2
Mời các bạn theo chúng tôi lên tầng 2. Tầng 2 của bản vẽ thiết kế nhà 90m2 gồm: 3 phòng ngủ, 1 phòng thờ
Bên trái hành lang là 2 phòng ngủ 2 và 3 có diện tích bằng nhau là 13m2. Trong phòng được bố trí nội thất tương đối giống nhau. Sang bên phải hành lang là phòng thờ có diện tích vừa phải, là nơi bạn thể hiện đạo "uống nước nhớ nguồn", thờ cúng tổ tiên theo đúng phong tục của người Việt Nam. Phòng ngủ 4 với diện tích rộng nhất là 20m2, có khu vực ban công, bạn có thể ngắm sao, hóng gió vào những buổi tối mùa hạ hoặc tận hưởng không khí trong lành vào những buổi sáng sớm, cực kỳ tốt cho sức khỏe.

Mặt đứng trục A-B bản vẽ thiết kế nhà 90m2.
Mặt đứng trúc A-B thể hiện cho bạn thấy được cách bố trí cửa chính, cửa sổ và cửa ban công một cách chính xác nhất, người không có chuyên môn trong ngành xây dựng cũng có thể hiểu được bản vẽ.

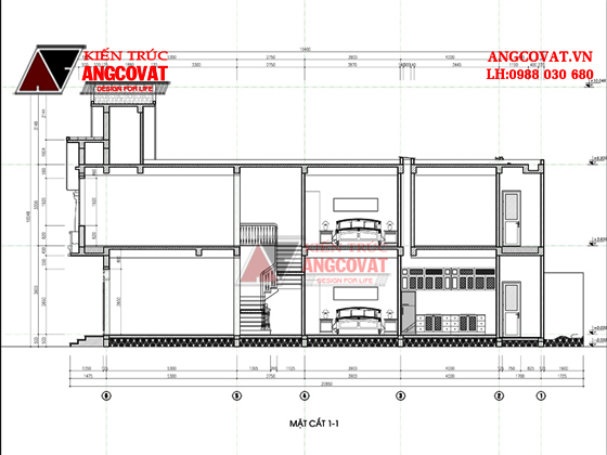
Mặt cắt 1-1 bản vẽ thiết kế nhà 90m2
Nhìn vào mặt cắt 1-1 bạn có thể thấy được toàn bộ các bố trí nội thất các phòng cũng như cách thiết kế khu vực cầu thang để bạn có cái nhìn tổng quan và hình dung dễ dàng hơn.
Những gì chúng tôi phân tích trên đây hi vọng giúp ích được cho các bạn trong quá trình tham khảo chọn mẫu kiến trúc thiết kế nhà đep phù hợp. Nếu có những thắc mắc cần lời giải đáp, đừng ngần ngại, hãy gọi cho chúng tôi bất cứ khi nào bạn cần sự trợ giúp, chúng tôi sẵn sàng phục vụ.
Hotline: 0988 030 680.
Nguồn: http://kinhnghiemxaynha.info/Ban-ve-thiet-ke-nha-90m2-mat-tien-5m-4-phong-ngu-o-Hai-Duong-BT526046-3386-c.aspx