Tạm dời xa những mẫu biệt thự 3 tầng với số lượng phòng ngủ lớn hôm nay chúng ta cùng đi khám phá mẫu thiết kế nhà 3 tầng 2 phòng ngủ diện tích 160m2. Có thể nói đây chính là mẫu nhà biệt thự rộng có không gian sinh hoạt thoải mái dành cho gia chủ. Mẫu biệt thự 3 tầng mặt tiền rộng 160m2 này được chúng tôi thiết kế theo phong cách hiện đại tạo cảm giác mới. Bên cạnh đó phong cách hiện đại còn mang tới sự thoải mái, sang trọng và không kém phần đẳng cấp. Dưới đây là một vài thông số kỹ thuật để bạn tham khảo.
Thông số kỹ thuật mẫu thiết kế nhà 3 tầng 2 phòng ngủ mặt tiền 16m hiện đại đẹp BT21265
|
Mẫu biệt thự |
BT21265 |
|
Số tầng |
03 |
|
Chủ đầu tư |
ông Vũ Đắc Minh |
|
Địa chỉ |
Hà Nội |
|
Mặt tiền |
16m |
|
Chiều sâu |
10m |
|
Kích thước ô đất |
170m2 |
|
Kiến trúc sư thiết kế |
Nguyễn Văn Nhung |
|
năm thi công |
2015 |
|
Kinh phí đầu tư dự kiến |
1.8 tỷ VND |
|
Thông số công năng, diện tích |
- Tầng 1: 1 phòng khách, 1 gara ô tô - diện tích 150m2
- Tầng 2: 1 phòng bếp ăn, 1 phòng ngủ - diện tích 160m2
- Tầng 3: 1 phòng ngủ, 1 phòng vệ sinh, 1 phòng trà - diện tích 150m2
|

Phối cảnh 1 - Mẫu thiết kế nhà 3 tầng 2 phòng ngủ diện tích 160m2 phong cách hiện đại đẹp BT21265
Phân tích ngoại thất mẫu thiết kế nhà 3 tầng 2 phòng ngủ mặt tiền 16m ở Hà Nội
Nhìn vào phối cảnh mẫu biệt thự đẹp 3 tầng 160m2 bạn có thể thấy ngôi nhà nổi bật với hệ thống mái thái bắt mắt. Mái nhà được sử dụng là dạng mái dốc màu nâu đất đây được coi là một trong những yếu tố kiến trúc quan trọng trong mẫu thiết kế nhà 3 tầng mặt tiền 16m. Kết cấu mái thái có độ dốc khoảng 20% dáng mái xuôi 2 chiều giúp thoát nước nhanh đồng thời tạo vẻ đăng đối cho công trình thiết kế nhà đẹp 160m2.
Mẫu thiết kế nhà 3 tầng 2 phòng ngủ 16x10m sở hữu kết cấu mái dốc màu nâu đất.
Mái thái không chỉ được thiết kế làm hệ mái chính mà còn được thiết kế làm mái đua tại các khung cửa sổ, vừa có tác dụng che chắn nắng mưa vừa góp phần trang trí cho mẫu thiết kế nhà 160m2 thêm đẹp. Thiết kế mái nhà như vậy đã mang đến sự chắc chắn mà còn tạo cảm giác an toàn khi ngôi nhà được bảo vệ từng tầng, từng lớp.
Nhìn vào hệ thống mái này chúng tôi lại nhớ về mẫu biệt thự 300m2 3 tầng cũng có kiểu mái giật cấp như này. Chính thiết kế như vậy đã mang đến vẻ trang nhã, hút mắt người đối diện từ cái nhìn đầu tiên
Cùng với hệ thống mái thái, bạn có thể thấy các thanh lam gỗ trang trí được chúng tôi cách điệu giúp ngôi biệt thự 3 tầng hiện đại trở nên đẹp, khác biệt và thu hút người nhìn. Có thể nói ngôi nhà tuy được thiết kế theo phong cách hiện đại nhưng với các lam gõ trang trí ngôi nhà trở nên đẹp, hài hòa hơn rất nhiều.

Phối cảnh 2 - Mẫu thiết kế nhà 3 tầng 2 phòng ngủ diện tích 160m2 phong cách hiện đại đẹp
Thiết kế nhà 3 tầng 2 phòng ngủ mặt tiền 16m ở Hà Nội có tone sơn chủ đạo là màu trắng.
Mẫu thiết kế nhà 3 tầng 2 phòng ngủ ở Hà Nội được làm nổi bật với tone sơn trắng làm chủ đạo. Màu trắng là gam màu sáng mang đến sự thoáng đãng và rộng rãi cho không gian. Khi sử dụng màu trắng là tone màu chủ đạo bạn sẽ có cảm giác thân thiện, thư giãn và thoải mái hơn. Đặc biệt tone màu trắng dễ kết hợp với tone màu khác nhằm làm nổi bật lên kiến trúc hiện đại cũng như mang đến điểm nhấn cho thiết kế nhà biệt thự đẹp.
Song hành cùng tone màu chủ đạo là hệ thống cửa kính sang trọng, cửa kính sẽ giúp mang nguồn ánh sáng, gió tự nhiên từ bên ngoài đồng thời tạo vẻ sang trọng và hiện đại cho không gian kiểu nhà 3 tàng mặt tiền đẹp. Các tấm kính kết hợp cùng tone màu trắng trang nhã mang đến độ sáng, vẻ rộng và thoáng đãng cho không gian biệt thự 3 tầng 16x10m này
Một điểm bạn không thể bỏ qua khi nhìn vào phối cảnh của mẫu thiết kế nhà 3 tầng 2 phòng ngủ này chính là ban công. Ban công các tầng được thiết kế theo dạng hình vòm tròn tạo điểm nhìn đẹp cho chủ nhân các phòng. Thiết kế ban công như vậy mang đến sự mềm mại cho tổng thể mà vẫn tôn lên nét hiện đại.

Phối cảnh 3 - Mẫu thiết kế nhà 3 tầng 2 phòng ngủ diện tích 160m2 mặt tiền rộng
Mẫu thiết kế nhà 3 tầng mặt tiền rộng 16m, chiều sâu 10m được thiết kế với 2 cổng vào nhà.
Mẫu thiết kế nhà mặt tiền rộng 16m, chiều sâu 10m 3 tầng với vị trí đắc địa 2 mặt tiền, chính vì vậy mà chúng tôi đã thiết kế 2 cổng để có thể đi vào không gian bên trong nhà. Trong đó 1 cổng làm lối đưa ô tô vào gara trong nhà, cổng còn lại được thiết kế làm cổng chính đi lại cho các thành viên trong gia đình.
Nhìn vào hình ảnh kiến trúc nhà 3 tầng đẹp bạn có thể thất hệ thống hàng rào được sử dụng những thanh lam sắt trắng cao cấp. Còn các trụ cổng được thiết kế cách điệu tạo sự liên kết và vẻ bền vững kiến trúc. Hệ thống rào cổng cao có khả năng chống trộm và tạo độ an toàn cho tổng thể công trình thiết kế nhà có mặt tiền rộng.
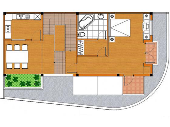
Mặt bằng mẫu thiết kế nhà 3 tầng 2 phòng ngủ diện tích 160m2 phong cách hiện đại.

Mặt bằng tầng 1 - Mẫu thiết kế nhà 3 tầng 2 phòng ngủ diện tích 160m2 mặt tiền 16m
Mặt bằng tầng 1 - Thiết kế nhà 3 tầng 2 phòng ngủ kích thước 16x10m
Không giống như cách bố trí mặt bằng công năng trong các thiết kế nhà cổ điển hay tân cổ như mẫu biệt thự 3 tầng tổng thì mẫu nhà 3 tầng mặt tiền 16m hiện đại dưới đây được thiết kế không gian bên trong vô cùng tiện nghi, các phòng chức năng theo không gian mở. Công năng của các phòng đều đề cao sự rộng rãi , thoải mái cho gia chủ có được không gian sống tự nhiên tiện nghi nhất.
Mặt bằng tầng 1 của bản vẽ chi tiết thiết kế nhà 3 tầng 16x10m bao gồm 1 gara ô tô, 1 phòng khách. Phòng khách của mẫu thiết kế nhà có mặt tiền rộng được thiết kế với đầy đủ tiện nghi nội thất. Không gian phòng gần với cửa sổ nên đã mang đến cảm giác thoải má, sang trọng khi tiếp khách dành cho gia chủ.

Mặt bằng tầng 2 - Mẫu thiết kế nhà 3 tầng 2 phòng ngủ diện tích 160m2 hiện đại BT21265
Mặt bằng tầng 2 - Thiết kế nhà 3 tầng diện tích 160m2 mặt tiền 16m
Tiến lên mặt bằng tầng 2 của mẫu thiết kế nhà 3 tầng 2 phòng ngủ diện tích 160m2 gồm có 1 phòng bếp ăn và 1 phòng ngủ. Phòng bếp ăn bao gồm khu bếp nấu nướng và khu bàn ăn sang trọng và tinh tế. Phòng bếp được thiết kế tone màu vàng nhạt làm nổi bật lên không gian ấm áp và gần gũi. Đây chính là không gian cả gia đình quây quần bên nhau cùng thưởng thức những bữa cơm ngon lành, vui vẻ.
Tiếp theo là phòng ngủ ở tầng 2 với không gian rộng có vệ sinh khép kín, đây là không gian riêng tư dành cho vợ chồng chủ đầu tư nghỉ ngơi và làm việc. Không gian ngủ được bố trí đầy đủ nội thất thiết yếu và có cửa sổ để tạo độ thoáng cho phòng.

Mặt bằng tầng 3 - Mẫu thiết kế nhà 3 tầng 2 phòng ngủ diện tích 160m2 kích thước 10x16m tại Hà Nội
Mặt bằng tầng 3 - Thiết kế nhà 3 tầng 2 phòng ngủ diện tích 160m2 hiện đại đẹp.
Mặt bằng tầng 3 của mẫu thiết kế nhà 3 tầng 2 phòng ngủ diện tích 160m2 bao gồm 1 phòng ngủ, 1 phòng vệ sinh và phòng trà. Phòng ngủ trên tầng 2 được thiết kế không gian thông thoáng dành cho người con trong gia đình. Phòng ngủ có vệ sinh khép kín tạo sự thuận tiện khi sử dụng. Đặc biệt khu vực thiết kế biệt thự tầng 3 có phòng trà không gian mở là nơi các thành viên trong gia đình được quây quần bên nhau trò chuyện, thưởng thức trà chiều và trò chuyện vui vẻ bên nhau.
Mẫu thiết kế nhà 3 tầng 2 phòng ngủ với đầy đủ công năng, kỹ thuật chắc chắn và đảm bảo yếu tố thẩm mỹ đáp ứng nhu cầu và sở thích của chủ đầu tư. Mẫu thiết kế nhà 3 tầng mặt tiền 16m phù hợp với khách hàng yêu thích kiến trúc hiện đại đơn giản vừa giúp tiết kiệm chi phí vật liệu vừa mang đến không gian sống tiện nghi và gần gũi cho các thành viên trong gia đình. Ngoài mẫu thiết kế nhà 3 tầng 2 phòng ngủ diện tích 160m2 này chúng tôi còn có thiết kế mẫu biệt thự 3 tầng 2 mặt tiền để bạn tham khảo.
Liên hệ để được tư vấn tốt nhất Hotline: 0988 030 680
Nguồn: http://kinhnghiemxaynha.info/Mau-thiet-ke-nha-3-tang-2-phong-ngu-mat-tien-rong-16m-hien-dai-tai-Ha-Noi-BT21265-3341-c.aspx