Mẫu biệt thự 100m2 có 2 tầng 4 phòng ngủ được xây dựng trên khu đất rộng rãi khoảng 500m2. Ngôi nhà có tiểu cảnh sân vườn xinh xắn và có thiết kế sân chơi thoáng đãng, đẹp mắt ở tầng 2. Đây sẽ là một mẫu thiết kế biệt thự đẹp đáng tham khảo đối với những ai đang tìm kiếm một số mẫu biệt thự đẹp, thiết kế đơn giản mà vô cùng hiện đại nhưng chỉ phải bỏ ra một chi phí vừa phải từ 900 triệu đến 1 tỷ đồng.
Thông tin mẫu biệt thự 100m2 2 tầng 4 phòng ngủ đơn giản mà đẹp mắt
|
1: Mẫu biệt thự
|
BT308016 |
|
2: Số tầng
|
02
|
|
3: Chủ đầu tư
|
Ông Nhân
|
|
4: Địa chỉ
|
Thái Bình |
|
5: Mặt tiền
|
8m
|
|
6: Chiều sâu
|
13m
|
|
7: Diện tích đất
|
500m2 |
|
8: Năm thi công
|
2016
|
|
9: Kinh phí đầu tư dự kiến
|
1 tỷ đồng
|
|
10: Kiến trúc sư thiết kế
|
Vương Văn Quân |
|
11: Thông số công năng diện tích
|
- Tầng 1: 1 phòng khách, 1 phòng bếp ăn, 1 phòng ngủ, 1 phòng vệ sinh chung, 1 gara ô tô. Diện tích tầng 1: 100m2
- Tầng 2: 3 phòng ngủ, 2 phòng vệ sinh chung, 1 phòng thờ, 1 sân chơi. Diện tích tầng 2: 100m2
- Chiều cao tầng: 3,6m, 3,3m; Chiều cao mái: 3m, Diện tích mái 120m2
|
Ngoại thất đơn giản mà thu hút của mẫu thiết kế biệt thự 100m2 của ông Nhân ở Hà Nội
Căn biệt thự 2 tầng 100m2 của ông Nhân có thiết kế ngoại thất vô cùng đơn giản. Không chú trọng vào các đường nét, không đặt nặng vấn đề cầu kì, nhưng căn biệt thự này vẫn toát lên một vẻ đẹp của sự giản đơn mà tinh tế vô cùng. Lỗi kiến trúc hiện đại phối kết hợp các đường phào chỉ vuông vắn, nhưng không đắp quá nhiều phào chỉ để tạo điểm nhấn liên tục như nhiều căn biệt thự hiện đại khác, căn biệt thự này chỉ điểm xuyết những đường phào chỉ vuông vắn để tạo cảm giác không nhàm chán cho căn nhà.
Các mảng khối tường được tạo dựng theo từng khu vực tách biệt, thiết kế dạng chìm nổi rõ nét, mang đến những cảm nhận thú vị cho thị giác người nhìn. hệ thống ban công cũng không quá cầu kì như các thiết kế biệt thự cổ điển. Thiết kế nhà 2 tầng 100m2 này chỉ đơn giản sử dụng ban công kính phối hợp với ban công sắt với thanh thẳng dọc đơn giản. Tuy nhiên, chính sự đơn giản này lại khiến cho mẫu biệt thự này trông thoáng và thanh thoát hơn.
Đơn giản mà không hề mất đi giá trị của căn nhà, đó chính là tiêu chí thiết kế của những kiến trúc sư ANG bởi thế mà chúng tôi sử dụng các vật liệu cho ngôi nhà này đều là những loại cật liệu cao cấp. Những mảng tường nổi được ốp bằng đá ánh kim trắng có giá khoảng 155 000 đ/m2. Loại đá này vừa tạo ra những mảng tường nổi, góc cạnh trông vô cùng tự nhiên nhưng đồng thời, màu sắc của nó tạo ra những điểm sáng lấp lánh, thu hút thị giác của người nhìn đồng thời tạo một lớp áo bảo vệ cho trường ngoại thất cũng như khiến cho hệ thống tường ngoại thất không bị nhàm chán, tẻ nhạt. Điều này cũng tương tự như trong những mẫu biệt thự 2 tầng tân cổ điển, sự hòa hợp giữa các chi tiết kiến trúc được xem là điều mà bất cứ chủ nhà nào cũng mong muốn đạt được trong ngôi nhà của mình. Vẻ đẹp của thiết kế nhà 2 tầng luôn là điểm sáng thu hút mọi ánh nhìn xung quanh.
Bên cạnh đó, hệ thống bệ nhà cũng được ốp đá granit xà cừ xám trắng, là loại đá tự nhiên, có động bóng vừa phải, bền màu với thời gian, càng sử dụng đá sẽ càng bóng đẹp. Loại đá này có giá khoảng 1,4 triệu đồng/m2, khá cao nhưng nếu để đầu tư cho ngôi nhà mà bạn muốn sống cả cuộc đời thì tôi tin giá trị này hoàn toàn xứng đáng để thiết kế biệt thự mini 100m2 này bền mãi với thời gian.

Phối cảnh ngoại thất căn biệt thự 100m2 2 tầng 4 phòng ngủ đơn giản mà đẹp
Biệt thự mini 100m2 xinh xắn với màu sắc ngoại thất hiện đại, thu hút
Mẫu thiết kế biệt thự 100m2 2 tầng này sử dụng gam màu ngoại thất trắng xám làm tone chủ đạo, trong đó, gam chủ đạo là màu trắng được làm nổi bật bằng những khối tường xám ở hệ tống tường ngoại thất hay tường chân mái. Màu sắc này khiến cho ngôi nhà trông vừa tươi sáng lại vừa tạo cảm giác lịch sự, nhã nhặn. Màu trắng cũng là màu được sử dụng trong tất cả các phong cách thiết kế biệt thự tương tự như mẫu nhà 2 tầng 7x12m cũng được ứng dụng gam màu trắng sang trọng này.Bởi lẽ, đây là màu sắc mang tính trung hòa, có thể phối hợp được với tất cả các màu sắc khác, vừa làm tôn giá trị của màu sắc khác lên những cũng đồng thời tự làm mình nổi bật hơn. Bên cạnh đó, màu trắng cũng là màu thể hiện tốt nhất vẻ đẹp sang trọng, quý phái cho ngôi nhà của bạn. Nếu chủ nhà là người mệnh kim thì chắc chắn, màu trắng sẽ là màu sắc ưu tiên hàng đầu cho ngôi nhà bởi tính chất tương hỗ kim khí của nó.
Sơn ngoại thất chiếm một vị trí quan trọng biệt thự 100m2 2 tầng 4 phòng ngủ nói riêng và các mẫu biệt thự nói chung. Nó là lớp áo choàng bảo vệ cho ngôi nhà khỏi những mưa gió, nắng nóng, bụi bặm. Chúng tôi, những kiến trúc sư của ANGCOVAT thường nói rằng, "nhà có kết cấu kiến trúc và lối trang trí tinh tế tỉ mỉ đến đâu, nếu không biết cách phối màu cho sơn ngoại thất, hay sử dụng loại sơn kém chất lượng thì nó cũng chỉ đơn giản như 4 bức tường và 1 cái mái dựng lên để ở mà thôi". Bởi thế, chúng tôi luôn khuyên các khách hàng của mình sử dụng loại sơn ngoại thất có chất lượng tốt, cũng như đi theo cách phối hợp màu sắc mà các kiến trúc sư ANG đã thiết kế để ngôi nhà thật sự là một mẫu thiết kế nhà đẹp.
Thiết kế biệt thự 2 tầng đơn giản có sân chơi thoáng đãng, đẹp mắt
Mẫu biệt thự 2 tầng 4 phòng ngủ có điểm nhấn nổi bật là sân chơi thoáng đãng mang phong cách quán cafe ngoài trời. Không gian này được chủ nhà ưu ái cho trở thành một phần xuất hiện ở mặt tiền của ngôi nhà. Phần sân chơi này sẽ là địa điểm lí tưởng để cả gia đình quây quần với nhau, cùng nhau ăn sáng, hay nó có thể là không gian đọc sách vô cùng lí tưởng. Nhờ có sân chơi này mà thiết kế nhà 2 tầng 100m2 trở nên độc đáo hơn, đơn giản mà không hề nhàm chán, không cần phá cách nhưng vẫn đầy nổi bật và khác biệt với những ngôi nhà xung quanh
Mẫu thiết kế biệt thự 100m2 thoáng đãng với hệ thống sân vườn rộng rãi
Thiết kế mẫu biệt thự sân vườn 2 tầng 100m2 được xây trên một khu đất 500m2, do đó, chủ nhà có một không gian lớn để thiết kế hệ thống sân vườn rộng rãi cho gia đình mình. Với biệt thự này, các kiên trúc sư đã thiết kế mội khoảng sân rộng rãi ôm trọn 4 mặt ngôi nhà. Xug quanh khu đất được xây tường rào chắc chắn, lối kiến trúc tường rào cũng vô cùng đơn giản nhưng thu hút người nhìn. Đây là loại trường rào bê tông được đổ khuân rồi ghép nối với nhau. Loại tường rào này đảm bảo cho quá trình thi công diễn ra được nhanh chóng, đồng thời mang lại tính thẩm mỹ cao cũng như không tạo cảm giác tù túng như loại tường xây gạch truyền thống.
Tiểu cảnh sân vườn nhà ông Nhân được thiết kế với hệ thống cây cảnh thấp lùn bao xung quanh tường rào bên trái tạo cảm giác tươi mát nhẹ nhàng. Bên phải căn nhà trồng một vài loại cây cảnh tán thưa như lựu, mộc nhằm tạo cảm giác thoáng mát hơn. Lí do mà chúng tôi không thiết kế trồng những cây có tán rộng cho nhà ông Nhân là bởi thế đất nhà ông quân là thế đất vuông vắn, hướng Đông đón mặt trời sáng sớm. Do đó, phải để ngôi nhà thoáng đãng, không bị che chắn bởi tán cây để khí lưu hành và tụ hội trong nhà dễ dàng hơn. Đây chính là quy luật phong thủy mà các kiến trúc sư ANG đã áp dụng cho khoảng sân vườn xinh đẹp của căn biệt thự 2 tầng 100m2 với 4 phòng ngủ.

Phối cảnh mẫu thiết kế biệt thự 100m2 2 tầng 4 phòng ngủ phong cách hiện đại
Mẫu thiết kế biệt thự diện tích 100m2 có kết cấu vững chãi, thoáng rộng
Thiết kế biệt thự 100 m2 hiện đại được xây dựng theo kiểu nhà vuông, mái chéo vô cùng vững chắc. Các tầng có chiều cao là 3,6m, 3,3m đảm bảo cho ngôi nhà cao ráo, thoáng rộng. Hệ thống cửa sổ của ngôi nhà được xếp đặt so le hoặc đối xứng với nhau giúp cho ngôi nhà có thể đón nhận ánh sáng tự nhiên và gió trời nhiều nhất, tiết kiệm điện năng cho chủ nhà. Hệ thống móng nhà được đào sâu và xây nổi vừa có tác dụng nâng đỡ tổng thể tốt hơn lại vừa giúp mặt bằng chung được nâng lên so với mặt sân, khiến ngôi nhà bề thế, cao rộng hơn.

Mặt cắt trục 2-2 thiết kế biệt thự 100m2 2 tầng 4 phòng ngủ phong cách hiện đại

Mặt cắt 1-1 thiết kế biệt thự 100m2 2 tầng 4 phòng ngủ hiện đại
Biệt thự 2 tầng 4 phòng ngủ có hệ hống mái chéo được thiết kế xinh xắn. Mặc dù nhà được xây dựng theo kiểu khối nhà vuông nhưng mái được xây theo khối mái hình chữ L. Loại mái được sử dụng là máo chéo, có độ dốc vừa phải. Trên mái còn có thêm ống khói giả giúp cho ngôi nhà thêm phần sinh động và mang một chút nét văn hóa truyền thống của những mẫu biệt thự cổ điển mang phong cách châu âu.

Mặt đứng trục A-C thiết kế biệt thự 100m2 2 tầng 4 phòng ngủ phong cách hiện đại.

Mặt đứng trục 1-4 thiết kế biệt thự 100m2 2 tầng 4 phòng ngủ phong cách hiện đại.
Thăm quan nội thất hiện đại mà hợp phong thủy của thiết kế biệt thự 100m2 ở Hà Nội
Xu hướng thiết kế nhà hiện nay là nhà không chỉ đẹp mà còn phải mang phong cách, không chỉ mang dấu ấn cá nhân cho chủ nhà mà còn phải hợp mệnh hợp tuổi hợp phong thủy.Ông Nhân là người rất coi trọng yếu tố phong thủy, chính vì thế yêu cầu của ông với ANGCOVAT là nội thất căn nhà của ông phải được bài trí tuân theo những quy tắc phong thủy. Các kiến trúc sư của ANG đã mất rất nhiều thời gian nghiên cứu phong thủy, sửa lại bản thiết kế nhiều lần mới có thể tạo ra một mẫu thiết kế hoàn hảo như vậy. Chúng ta sẽ cùng khám phá nội thất căn nhà này.
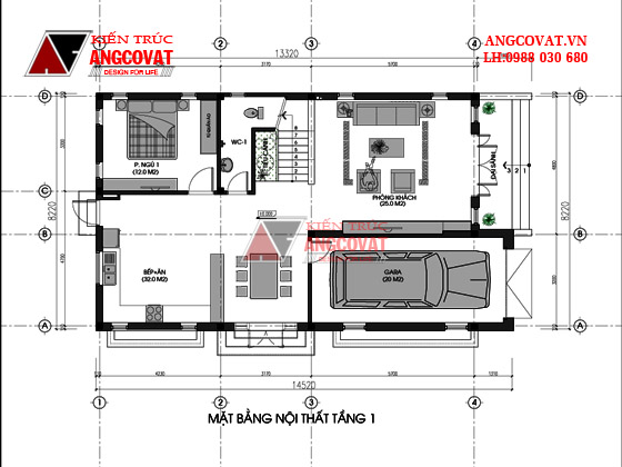
Nội thất tầng 1 đẹp mắt với sự kết hợp của nhiều yếu tố phong thủy
Căn nhà 2 tầng 4 phòng ngủ với diện tích 100m2 xây dựng 1 gara ô tô cho căn nhà. Gara này được thiết kế nhỏ gọn và thấp hơn hệ thống các phòng của tầng 1, đảm bảo cho căn nhà được cân bằng và việc lấy xe của chủ nhà cũng thuận tiện hơn.
Phòng khách của nhà ông Nhân được bài trí 1 bộ sofa, 1 kệ tivi và 1 ti vi màn hình phẳng. Điểm đặc biệt cho căn phòng khách chính là sắp xếp hệ thống cửa sổ và cửa chính của ngôi nhà vuông góc với nhau, giúp quy tụ ánh sáng vào trung tâm căn phòng - chính là nơi đặt bộ sofa, đây chính là yếu tố quan trọng giúp các tà khí bị chặn lại ở cửa ra vào, không, đồng thời tạo ra sức mạnh ánh sáng đủ lớn để xua đuổi những điều không hay cho gia đình.
Sau phòng khách là đến phòng bếp ăn của thiết kế biệt thự 2 tầng đơn giản. Phòng bếp và phòng ăn ở cùng một khu nhưng được ngăn cách nhau bởi 1 bức tường dày. Bức tường này được ốp đá nghệ thuật tạo thành một bức tiểu cảnh sân vườn có đủ tùng cúc trúc mai cho phòng ăn.Phòng ăn này được bố trí một cửa sổ lớn, cung cấp đủ ảnh sáng cho cả gian phòng đồng thời đảm bảo mùi thức ăn không bị ám vào nhà. Bếp ăn được thiết kế đơn giản với đầy đủ tiện nghi. Căn bếp thiết kế 3 khung cửa hứng sáng để căn phòng thêm thoáng rộng, không bị ám mùi dầu mỡ, thức ăn. Ngoài ra, căn bếp này cũng được thiết kế thêm một cửa ra lối sân sau của biệt thự.
Thiết kế tầng 1 của biệt thự 2 tầng 100m2 còn chừa một khoảng không gian cho 1 phòng ngủ nhỏ xinh. Trong phòng bài trí một bộ giường ngủ, 1 bộ kệ tủ ti vi, 1 ti vi màn hình phẳng và 1 tủ quần áo. Giường được quay đầu đựa vào tường và quay đuôi ra phía bếp. Theo thuật phong thủy, nếu phòng thủy cạnh bếp thì phải đặt đuôi giường về phía bếp để khí ấm lan từ chân lan lên khi ta ngủ trên giường. Nếu quay ngược lại sẽ có ảnh hưởng không tốt tới sức khỏe cho người sống trong phòng này.
Để tiết kiệm diện tích cho mẫu biệt thự diện tích 100m2 này, các kiến trúc sư của chúng tôi đã thiết kế một phòng vệ sinh chung cho tầng 1 ngay dưới cầu thang. Đây là giải pháp thường dùng cho các căn nhà có diện tích nhỏ. Phòng vệ sinh này được xây dựng rất gọn gàng và đầy đủ tiện nghi.
Như đã nói ở trên, ông Nhân là một người rất chú trọng yếu tố phong thủy, do đó, các kiến trúc sư ANG đã đặt một tiểu cảnh cầu thang xinh xắn ở chân cầu thang tầng 1. Ban đầu, tiểu cảnh này được thiết kế là tiểu cảnh hồ nước nhỏ, nhưng sau đó, xem xét lại kĩ nguyên tắc phong thủy, chúng tôi nhận thấy, cầu thang này chỉ phù hợp để xây dựng tiểu cạnh tĩnh, kết hợp hài hòa giữa đá và cây xanh để tạo sự ấm áp, sinh động cho phần gầm cầu thang; đồng thời vị trí này có thể hút ánh sáng từ phía cửa sổ ở gian phòng ăn, giữ lại vượng khí cho căn nhà. Điều này có ý trong việc phát triển sự nghiệp của bố mẹ cũng như việc học hành của con cái trong gia đình.
.jpg)
Mặt bằng nội thất tầng 1 thiết kế biệt thự 100 m2 theo phong cách hiện đại
Nội thất tầng 2 mẫu biệt thự 100m2 sang trọng, tiện nghi và vô cùng hiện đại
Diện tích tầng 2 của mẫu biệt thự mini 100m2 dành phần lớn không gian cho các phòng ngủ, trong đó có 2 phòng ngủ thường và 1 phòng ngủ master. Hai phòng ngủ thường có nội thất tương đối giống nhau, bài trí 1 giường, 1 tủ quần áo, 1 kệ ti vi, 1 tivi. Phòng ngủ số 2 do là phòng ngủ của con nên còn được đặt thêm một chiếc bàn học dài cạnh cửa sổ. Ở giữa 2 phòng ngủ là 1 phòng vệ sinh chung, diện tích nhỏ nhắn nhưng vẫn đầy đủ công năng tiện ích. Cả 2 phòng ngủ trên đều có từ 3 - 4 cửa sổ giúp hứng nắng, đón gió, điều hòa không khí vì thế mà 2 căn phòng tuy nhỏ mà không bị tù túng, bí bách.
Phòng ngủ master của mẫu thiết kế biệt thự 100m2 có diện tích lớn hơn hẳn và được thiết kế cầu kì, sang trọng và tỉ mỉ hơn. Nội thất trong căn phòng này được bài trí đẹp mắt, phối hợp cả thảm họa tiết ba tư cùng với bộ màn buông 4 cửa "tone sur tone" với sơn nội thất khiến cho căn phòng đẹp lung linh như trong truyện cổ tích. Phòng ngủ này được thiết kế là 1 phòng ngủ khép kín có lối ra ban công lộng gió. Căn phòng này được thiết kế rất tỉ mỉ và sang trọng, như nét vẽ duyên dáng cho nội thất căn biệt hự 2 tầng 100m2 này.
Tầng 2 còn là nơi được dành không gian cho phòng thờ. Phòng thờ của căn nhà được bài trí giống như 1 phòng khách kết hợp phòng thờ - mô hình thường thấy của một số mẫu thiết kế nhà thờ kết hợp nhà ở. Trong căn phòng này được bày 1 bộ bàn thờ cặp đôi kiểu hiện đại, đi cùng với 1 bộ bàn ghế gỗ đơn giản, nhỏ gọn để mỗi dịp con cháu về thắp hương tổ tiên lại cùng nhau ngồi xuống nói chuyện, quây quần.
Không gian còn lại của tầng 2 mẫu biệt thự 2 tầng 100m2 dành cho sân chơi. Sân chơi được thiết kế nền thấp hơn so với nền mặt bằng chung củ tầng 2. Theo thuật phong thủy, sân là nơi phải có nền thấp hơn nền nhà thì mới tạo được thế cân bằng giữa hành hỏa (nền nhà) và hành thổ ( nền sân). Do đó, phần sân chơi này được thiết kế với nền thấp hơn, có cầu thang đi từ phòng thờ và phòng ngủ master đi xuống sân chơi. Nơi đây có bài trí 1 bộ bàn tròn 6 chỗ xinh xắn và đặt một vài chậu cây cảnh xanh mát. Phong cách thiết kế sân chơi của căn biệt thự này gần giống với phong cách thường thấy ở những quán cà phê ngoài trời, tạo một chút thơ, chút mơ mộng cho căn nhà 2 tầng diện tích 100m2 này.

Mẫu thiết kế biệt thự 100m2 tuy là một mẫu biệt thự đơn giản nhưng lại mang đến cho người dùng trải nghiệm rõ rệt về một không gian hiện đại, tiện nghi, gần gũi với thiên nhiên. Với những người yêu thích các mẫu biệt thự hiện đại với thiết kế đơn giản mà khỏe khoắn thì đây là một gợi ý không thể tuyệt vời hơn. Còn nếu bạn vẫn đang tìm một thiết kế biệt thự 2 tầng hiện đại nhưng chấm phá thêm nhiều nét cổ điển cầu kì thì cũng có thể tham khảo các mẫu biệt thự 2 tầng tân cổ điển của chúng tôi. Chúng tôi có rất nhiều mẫu thiết kế đẹp khác muốn giới thiệu với các bạn, vì thế, nếu muốn tham khảo thêm nhiều mẫu thiết kế khácthì hãy liên hệ với chúng tôi qua số hotline của công ty, chúng tôi sẽ mang đến cho bạn sự tư vấn tốt nhất và hoàn toàn miễn phí. Ngoài ra, bạn cũng có thể tham khảo thêm Báo giá thiết kế nhà dân dụng cùng nhiều thông tin hữu ích khác về kiến trúc trên trang web angcovat.vn của chúng tôi.
Hotline: 0988 030 680